Ringdijk 5

Ringdijk 5

Ridderkerk

verkocht

Ook je woning succesvol verkopen? Neem dan contactmet ons op

Gratis waardebepaling

Omschrijving

Bijna 20 jaar lang vonden, en vinden klanten vandaag de dag nog steeds, hun weg naar de gezellige Woonwinkel Willemien en Corneel voor de aankleding en afwerking van hun woning, maar ook voor deskundige kleuradviezen voor in huis. Na zo’n lange periode is voor Willemien en Corneel nu de tijd aangebroken om aan andere dingen te gaan denken en is de eerste stap hiertoe gezet door het pand aan de rand van het centrum in Ridderkerk te koop te zetten en toe te werken naar een beëindiging van de woonwinkel.

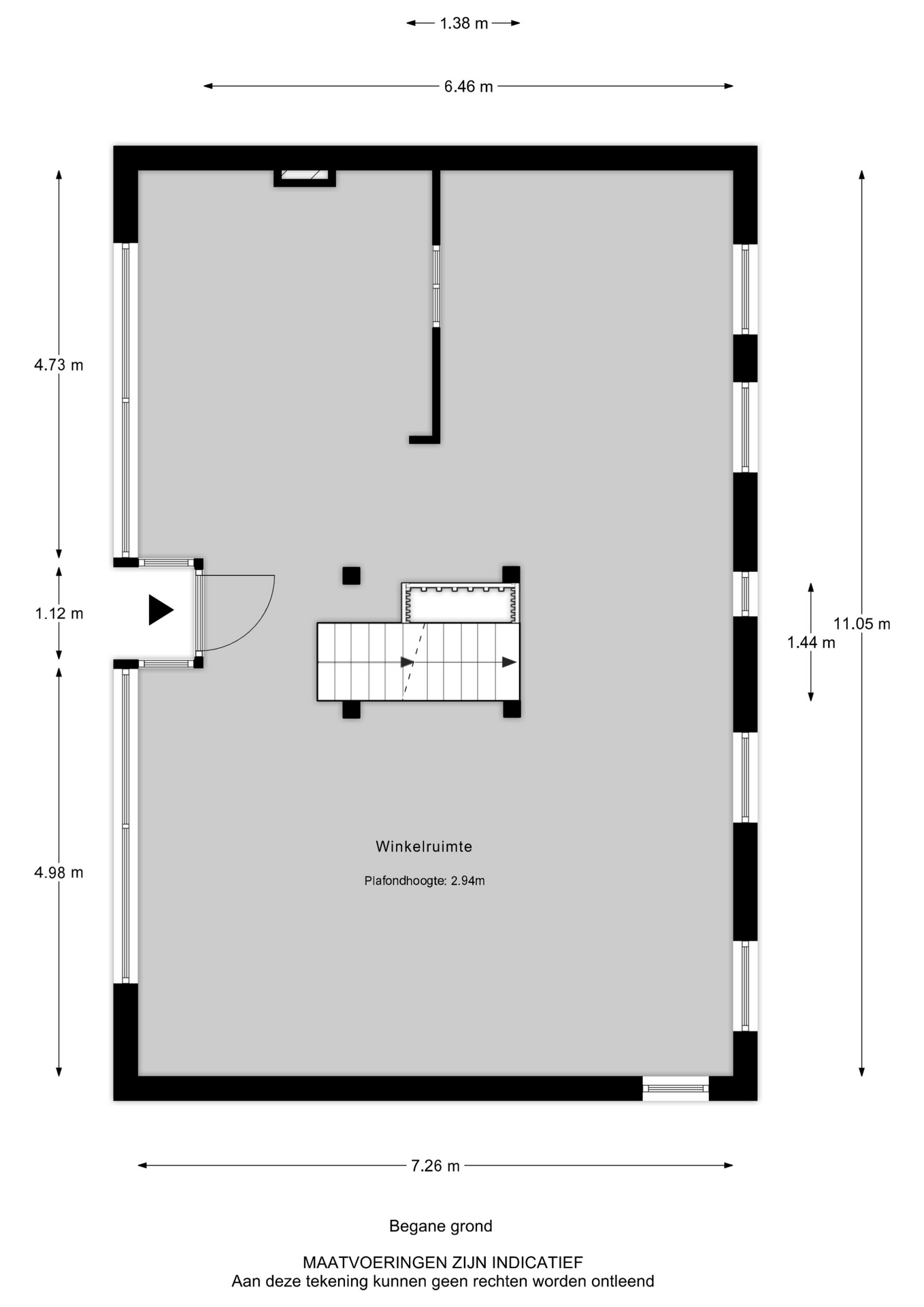
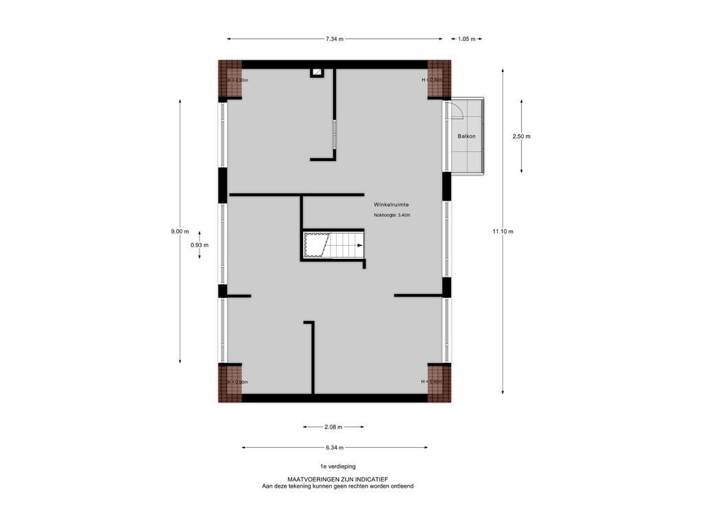
Het winkelpand is een dijkpand en heeft 2 adressen, te weten: Ringdijk 5 en Benedenrijweg 2A en vormt één kadastraal geheel (volledig bebouwde footprint van 86 m²). Het pand heeft geen monumentale status en beslaat maar liefst ca. 221 m² over drie bouwlagen (dijkniveau en kapverdieping elk ca. 79 m² en polderniveau ca. 63 m²). De breedte van het pand is ca. 11.05 meter en de diepte ca. 7.25 meter (binnen maats). Het vermoeden is dat het pand in het verleden ontstaan is door samenvoeging van twee voormalige dijkwoningen.

Voor aspirant kopers is het op voorhand een interessant multifunctioneel pand kunnen o.a. zijn:
- Wonen (grote dijkwoning of bijv. twee dijkwoningen)
- Voortzetting als winkelpand
- Combinatie woon-/ winkelpand
- Kantoor-/ praktijkpand (dienstverlening), eventueel in combinatie met wonen of
- Horeca (in combinatie met wonen)
Naast uiteraard de huidige bestemming detailhandel zijn de andere bestemmingen goed te realiseren, maar deze dienen uiteraard in goed overleg met de gemeente Ridderkerk te geschieden.

Willemien en Corneel zijn reuze benieuwd welke nieuwe bestemming het pand zal krijgen. Wij bezichtigen het pand graag met u om te bezien welke mogelijkheden het voor pand voor u heeft.

INDELING
Begane grond/ dijkniveau
- Centrale terug liggende entreedeur met aan weerszijden 2 etalageruiten (enkel/ dik glas);
- Grote sfeervolle winkelruimte met een open steektrap naar de kapverdieping en een trap naar het souterrain, een moer-en-kinderbinten plafond, een facet geslepen tegellambrisering en een grenenhouten plankenvloer. Ter plaatse van de achtergevel bevinden zich 4 nieuwe raamkozijnen met isolatieglas.

Souterrain/ polderniveau
- Entreehal vanaf de Benedenrijweg, toilet en opslagruimte;
- Toilet met geheel betegelde wanden, wit sanitair en fontein;
- Opslagruimte (voorheen ook toilet);
- Dichte keuken met standaard kunststof inrichting in hoekopstelling met enkele rvs spoelbak, diverse onder- en bovenkasten en laden, gasaansluiting, warmwatervoorziening via een elektrische close-in-boiler. Inpandige stookruimte met opstelplaats cv-ketel;
- Praktische opslagruimte verdeeld over 2 stuks inbouwruimten.

Kapverdieping
- Grote sfeervolle zolderruimte met 2 dakspanten, een bijna pand brede dakkapel aan zowel voor- als de achterzijde en een balkon. Grenenhouten plankenvloer en 3 glas-in-lood ramen.

KADASTER
- Gemeente Ridderkerk, sectie H, nummer 1109, groot 86 m².
De eigendom van het perceel is belast met erfpacht t.b.v. Waterschap Hollandse Delta uit Ridderkerk. Het recht is altijddurend. Jaarlijkse canon bedraagt € 0,25.

ALGEMEEN
- Bouwjaar volgens de openbare bronnen: 1930;
- Bouwkarakteristiek: vermoedelijk een type staalfundering in metselwerk (gezien dijklichaam), steensdik gemetselde gevels, houten kozijnen (enkele vernieuwd), behoudens betonnen vloer op polderniveau, houten vloerconstructies en een houten beschoten zadeldak met betonpannen gedekt. Dakisolatie en gedeeltelijk isolatieglas;
- Vigerend bestemmingsplan/ omgevingsplan Ridderkerk: Bestemmingsplan ‘Centrum Ridderkerk'. Het bestemmingsplan is door de raad vastgesteld op 22 mei 2017. Enkelbestemming: ‘gemengd-2’ (o.a. detailhandel, dienstverlening en horeca, alsmede wonen). Dubbelbestemmingen: ‘waarde-archeologie 1’ en ‘waarde-cultuurhistorie’.

TECHNISCHE INSTALLATIES
- Uitgebreide elektrische installatie (10 groepen, 3 aardlekschakelaars en een hoofdschakelaar);
- Verwarming via een gasgestookte cv-ketel (Remeha Quinta 35C, 2009) met radiatoren;
- Warmwater via een elektrische close-in boiler;
- Airconditioning/ luchtbehandelingsunits (warmen en koelen) t.p.v. de winkelruimten (dijkniveau en kapverdieping);
- De gasmeter is geïnstalleerd in een kast t.p.v. de achtergevel aan de Benedenrijweg.

WAND EN VLOERAFWERKINGEN
- Begane grond/ dijkniveau: sauswerk wandafwerking i.c.m. een facet geslepen tegellambrisering. Grenenhouten plankenvloer.
- Kapverdieping: sauswerk wandafwerking. Grenenhouten plankenvloer.
- Souterrain/ polderniveau: sauswerk wandafwerking. Epoxy vloerafwerking.


Nadrukkelijk vermelden wij dat deze informatieverstrekking niet als een aanbieding of offerte mag worden beschouwd. Aan deze gegevens kunnen derhalve geen rechten worden ontleend en zijn wijzigingen voorbehouden.

De vermelde afmetingen/ oppervlakten in deze informatie zijn gemeten op basis van de BBMI (Branche Brede Meetinstructie). De meetinstructie is bedoeld om een meer eenduidige manier van meten toe te passen voor het geven van een indicatie van de gebruiksoppervlakte. De meetinstructie sluit verschillen in meetuitkomsten niet volledig uit, door bijvoorbeeld interpretatieverschillen, afrondingen of beperkingen bij het uitvoer en van de meting.

Let op! De foto’s in deze verkooppresentatie zijn genomen met een groothoeklens. Voor verkrijging van een reële indruk van de ruimten dient u de foto’s te spiegelen met de plattegronden!

Indien er plattegronden aan deze brochure zijn toegevoegd, houdt u er dan rekening mee dat deze plattegronden slechts een indicatie geven van de indeling.

Heeft u als geïnteresseerde deze woning bezichtigd met Zoomer Makelaardij, dan willen wij u graag verzoeken om ons binnen 5 werkdagen een reactie te geven.

Zoomer Makelaardij verlangt bij een verkooptransactie dat de kopende partij t.b.v. de verkopende partij een bankgarantie stelt c.q. waarborgsom stort ter grootte van 10% van de koopsom kosten koper. Dit ter meerdere zekerheid tot nakoming van de verplichtingen die voortvloeien uit de koopakte voor de kopende partij

Besluit u tot aankoop van een woning, denkt u dan aan een NVM aankoopmakelaar voor het behartigen van uw belangen.
Lees meer

Kenmerken

Condities

Status
verkocht
Aanvaarding
in overleg

Bouw

Hoofdbestemming
winkelruimte
Bouwjaar
1930

Oppervlakten en inhoud

Perceeloppervlakte
86 m²

Winkelruimte

Publieksgerichte dienstverlening
Ja
Detailhandel
Ja
Showroom
Ja
Oppervlakte
221 m²
Verkoopvloer oppervlakte
158 m²
Verdiepingen
3
Frontbreedte
1150
Horeca toegestaan
Ja
Welstandsklasse type
B2

Buitenruimte

Ligging
Winkelgebied stadscentrum

Foto's

Plattegronden

Locatie

Download de brochure

Neem contact op met Zoomer Makelaardij

Altijd vrijblijvend!
Naam *
Telefoonnummer *
E-mailadres *
Optioneel
Stel je vraag - optioneel

Liever direct contact?

Edwin helpt je graag verder!
Ik wil een afspraak
Edwin