Maaskant-erf 88

Maaskant-erf 88

DORDRECHT

verkocht

B
3
107

Ook je woning succesvol verkopen? Neem dan contactmet ons op

Gratis waardebepaling

Hier begint mooi wonen

Een warm thuis in Stadspolders waar alles samenkomt
In een rustige straat, met vrij uitzicht op een klein veldje, staat deze verrassend ruime en eigentijdse eengezinswoning. Hier woon je met alle gemakken binnen handbereik. Het winkelcentrum Bieshof ligt om de hoek en het treinstation bereik je lopend in een paar minuten. Toch ervaar je hier volop rust en privacy.

De woning is de afgelopen jaren grondig gemoderniseerd. De keuken is vernieuwd in 2018 en uitgevoerd in een stijlvolle antraciet kleur. Dankzij de dubbele wandopstelling is er veel werk- en opbergruimte en is koken hier een prettige bezigheid. Aan de achterzijde is in 2006 een uitbouw gerealiseerd, waardoor de woonkamer nu heerlijk ruim is. De tuingerichte ligging in combinatie met de openslaande deuren zorgt voor veel licht en een natuurlijke verbinding met buiten.
De achtertuin is strak aangelegd met grote tegels en groene borders. Een houten schutting rondom zorgt voor privacy en dankzij de achterom en houten berging is de tuin ook nog eens praktisch in gebruik. Een elektrisch zonnescherm maakt het helemaal af.

Op de eerste verdieping vind je twee goed bemeten slaapkamers en een nette badkamer die in 2019 is vernieuwd. Deze is voorzien van een inloopdouche, een modern wastafelmeubel en een hangend toilet. Comfort wordt hier versterkt door elektrische vloerverwarming en mechanische ventilatie.

De tweede verdieping biedt ruimte aan een royale overloop en een derde slaapkamer. Extra bergruimte is er achter de knieschotten en op de handige vliering, ideaal voor koffers, seizoensspullen of andere zaken die je niet dagelijks nodig hebt.

De woning is energiezuinig dankzij de plaatsing van elf zonnepanelen in 2023. Daarnaast is de begane grond voorzien van comfortabele vloerverwarming met vijf groepen, wat zorgt voor een aangename temperatuur in elk seizoen.
Deze woning is niet alleen instapklaar, maar biedt ook een fijne balans tussen comfort, stijl en locatie. Een plek waar je je direct thuis voelt.

INDELING:
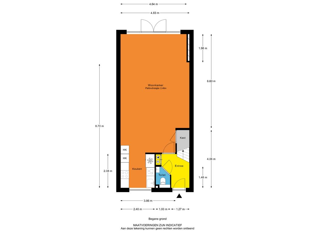
Begane grond
- Entree, hal, meterkast, toilet, trap naar verdieping;
- Modern toilet (2019) met geheel betegelde wanden, plavuizen vloer, wit sanitair, hangcloset en fontein;
- Tuingerichte woonkamer (met uitbouw) met openslaande deuren, een plavuizen vloer inclusief 5 groeps- vloerverwarming en een trapkast;
- Trapkast, met praktische opbergruimte en de vloerverwarming verdeler;
- Open keuken (2018), gelegen aan de voorzijde van de woning met moderne/ luxe inrichting, uitgevoerd in een dubbele wandopstelling met een enkele rvs spoelbak, diverse onder - en bovenkasten, laden, app.: afzuigunit, 4-pits inductie kookplaat, een Unito kraan (heet water, gefilterd water en bruisend water), een vaatwasser, een koel-vriescombinatie en een stoomoven.

Eerste verdieping
- Overloop met toegang tot twee slaapkamers en de badkamer;
- Slaapkamer 1, gelegen aan de achterzijde, met twee kunststof Velux dakramen en een vaste schuifkastenwand;
- Slaapkamer 2, gelegen aan de voorzijde;
- Nette badkamer (2019), gelegen aan de voorzijde met geheel betegelde wanden, plavuizen vloer incl. elektrische vloerverwarming, wit sanitair, wastafelmeubel, een inloopdouche, een hangcloset en een designradiator. Te openen raam.

Tweede verdieping
- Ruime overloop, met Veluxdakraam, bergruimte achter knieschotten, de opstelplaats t.b.v. wasmachine, droger en de cv-combiketel. Verder biedt de overloop toegang tot slaapkamer 3 en de vliering;
- Slaapkamer 3, toegankelijk via twee openslaande deuren vanuit de overloop, een Veluxdakraam en bergruimte achter knieschotten;

Vliering
- Met praktische opbergruimte en een nokhoogte van ca. 1.44m.

Buitenshuis
- Voortuin: ca. 3.10 x 5.00 m., gesitueerd op het noordoosten. Aangelegd met strakke tegels en borders met beplanting. De tuin is gelegen een klein grasveldje.
- Achtertuin: ca. 8.96 x 5.00 m., gesitueerd op het zuidwesten. Omheind met houten schuttingdelen met een achterom. Aangelegd met 60 x 60 cm tegels en borders met beplanting. Achterin de tuin staat een houtenberging welke van binnen is geïsoleerd en voorzien is van elektra, aansluitend is er een kleine overkapping. Verder is er een buitenkraan en is er een elektrisch bedienbaar zonnescherm aanwezig.

KADASTER
Gemeente Dordrecht, sectie R, nummer 3070, groot 123 m².

ALGEMEEN
- Fijne 4-kamer woning, welke de afgelopen jaren is gemoderniseerd;
- Centraal gelegen, letterlijk om de hoek bevindt zich het winkelcentrum Bieshof en op 5 min lopen van het treinstation Stadspolders;
- Ruime woonkamer dankzij de uitbouw aan de achterzijde;
- Houten kozijnen met dubbele beglazing;
- Volledig geïsoleerd vanuit de bouw;
- Energielabel B, geldig tot 26-10-2030 (voor het plaatsen van de zonnepanelen).

TECHNISCHE INSTALLATIES
- Verdeelinrichting meterkast bestaande uit: 9 groepen, een 2-fase groep en 3 aardlekschakelaars en een hoofdschakelaar;
- Verwarming en warmwatervoorziening via een gasgestookte cv-combiketel (Remeha Tzerra Ace Matic 28c, 2023) met radiatoren;
- Begane grond v.v. vloerverwarming (5 groepen);
- Mechanisch ventilatiesysteem;
- Elektrisch bedienbaar zonnescherm (ca. 2 jaar oud);
- 11 Stuks pv-panelen (ca. 2 jaar oud);
- Glasvezel aansluiting.

WAND EN VLOERAFWERKINGEN
- Begane grond: glad gestuukte en gesausde wanden en behang wandafwerking. Plavuizen vloer.
- Eerste verdieping: behang wandafwerking. Laminaat vloerafwerking.
- Tweede verdieping: vloerbedekking.

Nadrukkelijk vermelden wij dat deze informatieverstrekking niet als een aanbieding of offerte mag worden beschouwd. Aan deze gegevens kunnen derhalve geen rechten worden ontleend en zijn wijzigingen voorbehouden.

De vermelde afmetingen/ oppervlakten in deze informatie zijn gemeten op basis van de BBMI (Branche Brede Meetinstructie). De meetinstructie is bedoeld om een meer eenduidige manier van meten toe te passen voor het geven van een indicatie van de gebruiksoppervlakte. De meetinstructie sluit verschillen in meetuitkomsten niet volledig uit, door bijvoorbeeld interpretatieverschillen, afrondingen of beperkingen bij het uitvoer en van de meting.

Let op! De foto’s in deze verkooppresentatie zijn genomen met een groothoeklens. Voor verkrijging van een reële indruk van de ruimten dient u de foto’s te spiegelen met de plattegronden!

Indien er plattegronden aan deze brochure zijn toegevoegd, houdt u er dan rekening mee dat deze plattegronden slechts een indicatie geven van de indeling.

Heeft u als geïnteresseerde deze woning bezichtigd met Zoomer Makelaardij, dan willen wij u graag verzoeken om ons binnen 5 werkdagen een reactie te geven.

Zoomer Makelaardij verlangt bij een verkooptransactie dat de kopende partij t.b.v. de verkopende partij een bankgarantie stelt c.q. waarborgsom stort ter grootte van 10% van de koopsom kosten koper. Dit ter meerdere zekerheid tot nakoming van de verplichtingen die voortvloeien uit de koopakte voor de kopende partij

Besluit u tot aankoop van een woning, denkt u dan aan een NVM aankoopmakelaar voor het behartigen van uw belangen.
Lees meer

Kenmerken

Condities

Status
verkocht
Aanvaarding
in overleg

Bouw

Soort woning
woonhuis
Soort woonhuis
eengezinswoning
Type woonhuis
tussenwoning
Aantal woonlagen
3
Bouwjaar
1992
Onderhoud binnen
goed
Onderhoud buiten
goed
Voorzieningen
mechanische ventilatie, buitenzonwering, dakraam, glasvezel kabel
Isolatie
volledig geisoleerd

Energie

Energielabel
B
Verwarming
cv ketel
Warm water
cv ketel
C.V.-ketel
gas gestookte combi-ketel uit 2023 van Remeha Tzerra Ace Matic 28c, eigendom

Oppervlakten en inhoud

Woonoppervlakte
107 m²
Perceeloppervlakte
123 m²
Inhoud
350 m³
Bergruimte oppervlakte
6 m²

Indeling

Aantal kamers
4

Buitenruimte

Ligging
aan rustige weg, in woonwijk
Tuin
achtertuin met een oppervlakte van 45 m² en is gelegen op het zuidwesten

Garage / Schuur / Berging

Garage
geen garage
Parkeergelegenheid
openbaar parkeren
Schuur/berging
vrijstaand hout

Foto's

Locatie

Download de brochure

Neem contact op met Zoomer Makelaardij

Altijd vrijblijvend!
Naam *
Telefoonnummer *
E-mailadres *
Optioneel
Stel je vraag - optioneel

Liever direct contact?

Edwin helpt je graag verder!
Ik wil een afspraak
Edwin