Burgemeester Jaslaan 2

Burgemeester Jaslaan 2

DORDRECHT

verkocht

5
155

Ook je woning succesvol verkopen? Neem dan contactmet ons op

Gratis waardebepaling

Hier begint mooi wonen

Wonen op één van mooiste locaties van Dubbeldam, in een bijzondere 2-1 kapwoning in landhuisstijl, gebouwd in ca. 1925.

Deze karaktervolle 6-kamer woning met royaal bijgebouw (ca. 72 m² in 2 bouwlagen) is gelegen aan de lommerrijke éénrichtingsweg Burgemeester Jaslaan met zicht op het prachtige landgoed Dordwijk. De woning heeft de status van een gemeentelijk monument en staat op een royaal perceel van 404 m². Parkeren doet u op de oprit die via een betonnen brug bereikbaar is. De achtertuin is gesitueerd op het oosten en biedt veel privacy.

Een leuk weetje is dat de (bekende) architect van de woning (Walraven) zelf na oplevering van de woning na de bouw in deze woning heeft gewoond. Zijn voormalige werkkamer is thans een slaapkamer.

De woning biedt op de begane grond o.a. een woonkamer-en-suite met erker, een modern toilet, een open keuken met nette inrichting met diverse apparatuur en een praktische bijkeuken. Vanuit de gang is de provisiekelder bereikbaar. Op de 1e verdieping bevinden zich 4 slaapkamers (waarvan 1 met douche) en een verzorgde badkamer. Via de grootste slaapkamer is er een verbinding/ brugdoorsteek naar de verdieping van het bijgebouw. De 2e verdieping/ kapverdieping biedt een extra slaapkamer (5) en een bergzolder.

Het bijgebouw uit 1999 leent zich voor diverse gebruiksmogelijkheden zoals een kantoor of praktijk aan huis, na aanpassing woonruimte voor een inwonende ouder of kind of simpelweg t.b.v. opslagdoeleinden.

U dient er rekening mee te houden dat de woning aangepast dient te worden aan de hedendaagse woonwensen op het gebied van indeling en interieur en afwerking (dit komt mede doordat er in de woning ook kantoor/ bedrijf is gehouden). Hiermee zal, afhankelijk van de wensen/ eisen, een substantiële investering gemoeid zijn. Maar deze investering loont de moeite omdat er voldoende potentie aanwezig is. Als u eenmaal hier gesetteld bent, wilt u nooit meer weg!

Gunstige ligging t.o.v. wijkkern Damplein, scholen, sportfaciliteiten, openbaar vervoer, het Dordtse poldergebied en de Nieuwe Dordtse Biesbosch. Via randweg N3 is er een directe verbinding met de rijkswegen A15 en A16. Via de Dordwijklaan is het centrum en het centraal station in 10 fietsminuten te bereiken.

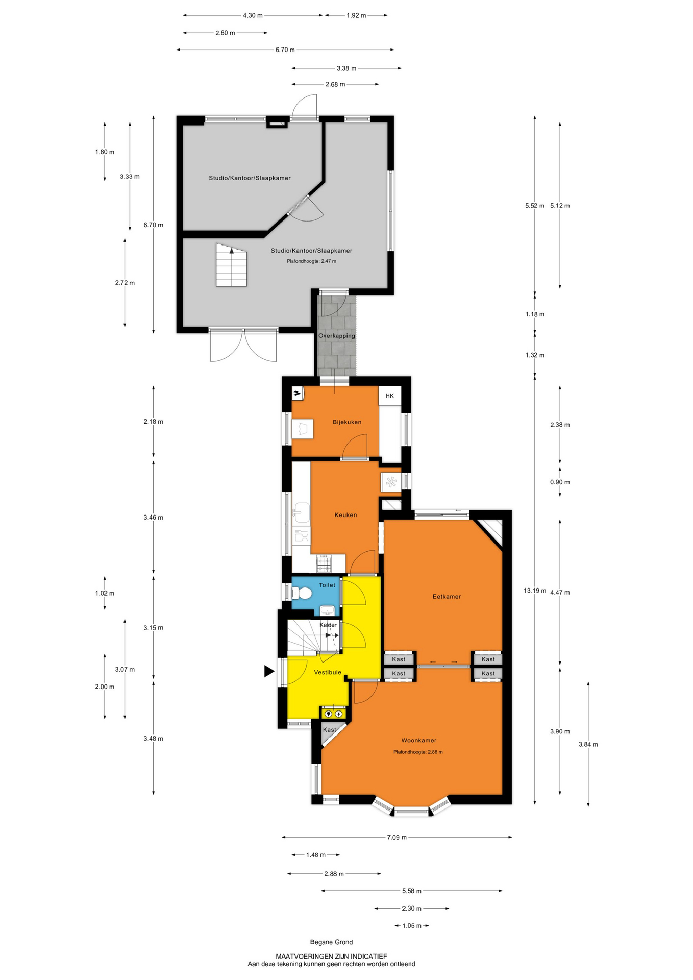
INDELING woning
Begane grond
- Entree via de vestibule aan de zijkant, met diverse glas-in-loodramen, meterkast en trapopgang naar de 1e verdieping;
- Gang met toegang tot provisiekelder, toiletruimte, keuken en woonkamer;
- Provisiekelder met betegelde betonvloer, deels kunststof schroten wandafwerking en een valraampje;
- Modern toilet met gedeeltelijk betegelde wanden, granitovloer, wit sanitair, hangcloset, fonteintje en glas-in-lood raampje;
- Woonkamer en-suite met glas-in-lood schuifdeuren en inbouwkasten, mooie cassette balken plafond. Voorkamer/ zitgedeelte met erker met glas-in-lood bovenramen. Achterkamer/ eetgedeelte met aluminium schuifpui naar de tuin;
- Halfopen keuken met kunststof keukeninrichting in hoekopstelling en een wandopstelling. Hoekopstelling met houtlook werkblad, enkele rvs spoelbak, div. onderkasten en laden, 2 bovenkasten, app.: rvs afzuigunit, 5-pits gaskookplaat incl. wokbrander, vaatwasser. Wandsectie met apothekerskast, bovenkast, koelkast en combi-oven. Deels betegelde wanden. Wandradiator.
- Bijkeuken met kunststof keukenblok, werkblad, onderkasten en laden. Wateraansluiting aanwezig. Opstelplaats cv-combiketel. Deur naar overkapping/ doorloop.

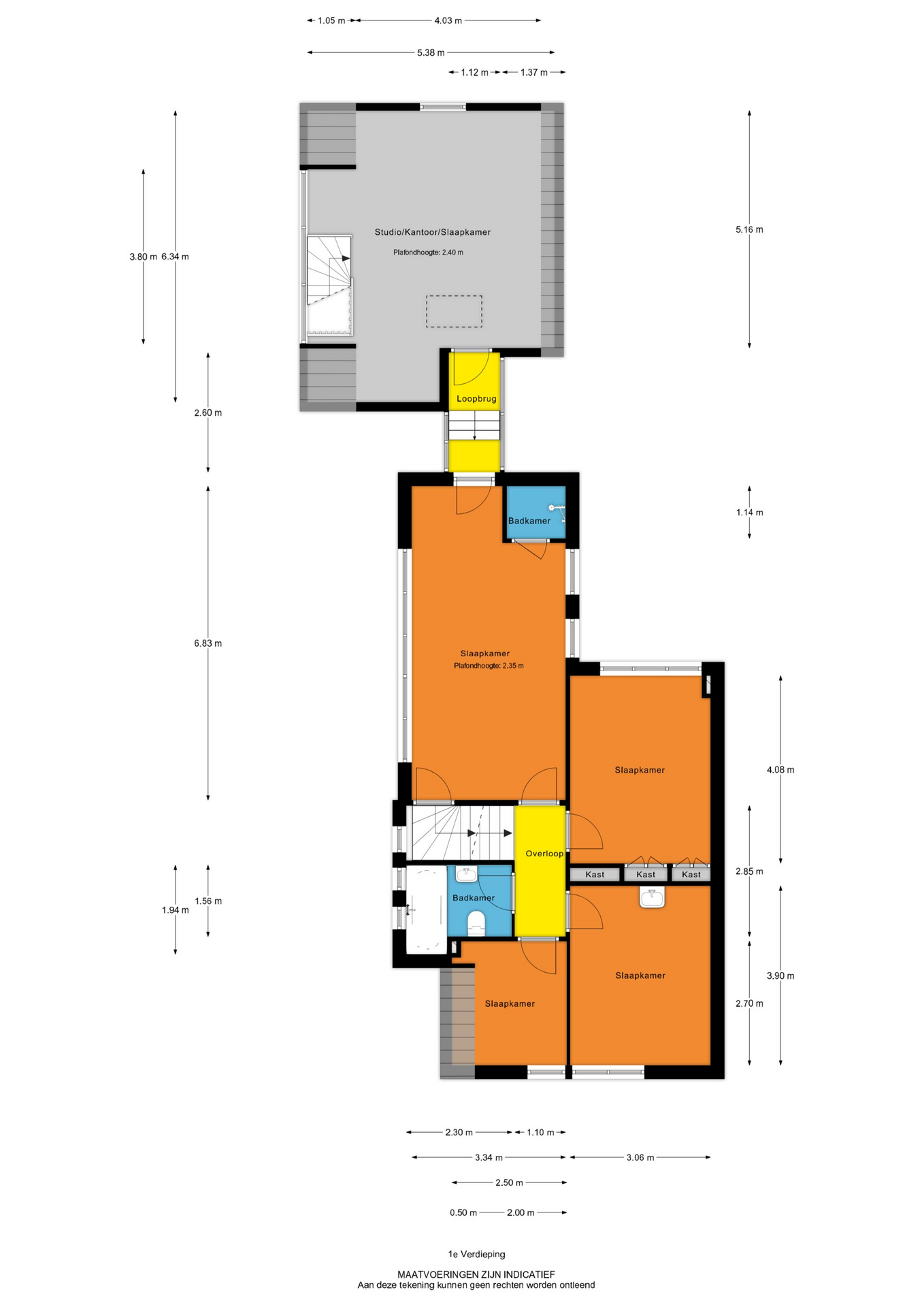
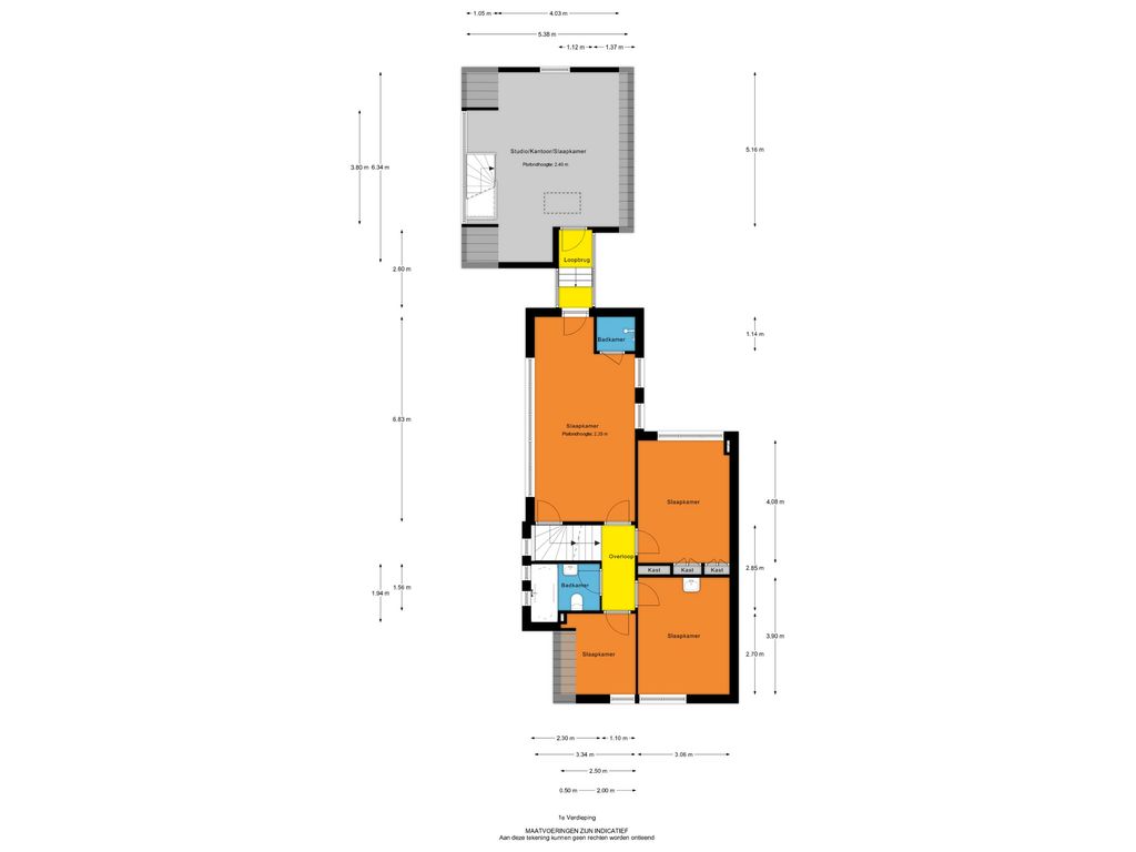
Eerste verdieping
- Overloop;
- Badkamer gelegen aan de zijkant met geheel betegelde wanden (wit), tegelvloer (blauw), wit sanitair, ligbad met thermostaatkraan, wastafel, hangcloset, designradiator en 2 glas-in-lood ramen;
- Slaapkamer 1 gelegen aan de voorzijde (links). Deze kamer is thans in gebruik als walk-in closet;
- Slaapkamer 2 gelegen aan de voorzijde (rechts), met inbouwkast en wastafel met planchet;
- Slaapkamer 3 gelegen aan de achterzijde (rechts), met inbouwkasten;
- Slaapkamer 4 gelegen aan de achterzijde (links). Hoofdslaapkamer met 7 zijramen v.v. glas-in-lood, airco-unit, extra douche, trapopgang naar zolderverdieping en deur naar brugdoorsteek bijgebouw. Extra douche met geheel betegelde wanden, tegelvloer, thermostaatkraan en mechanische afzuiging.

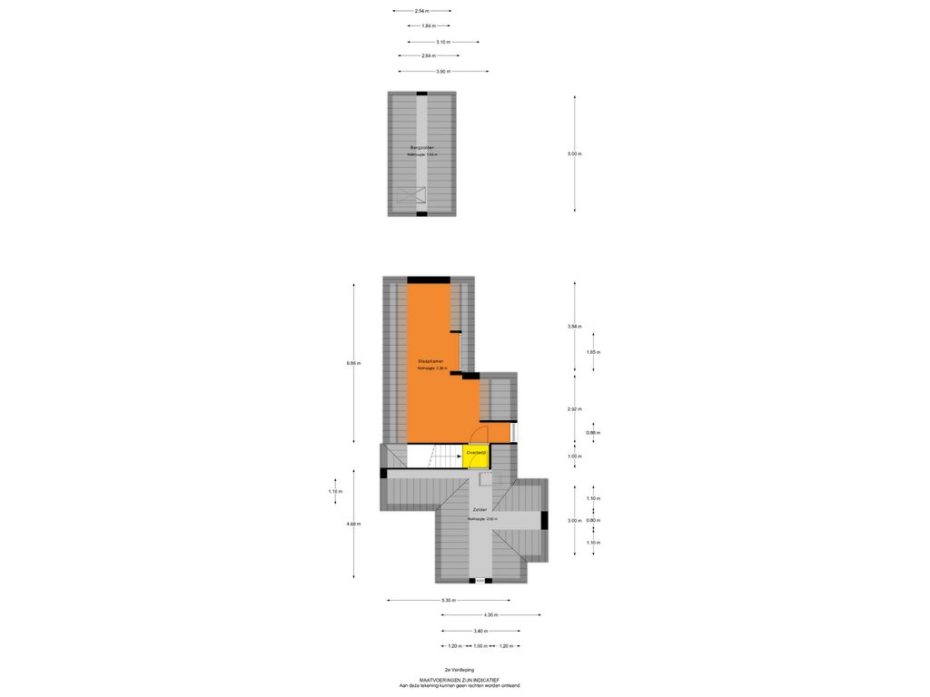
Zolderverdieping
- Slaapkamer 5 gelegen aan de achterzijde, met dakkapel, schuifkast, en 2e dakkapel met toegang tot plat dak;
- Bergzolder gelegen aan de voorzijde.

INDELING bijgebouw
- Entree mogelijk via dubbel deur voorzijde of via bijkeuken/tuin of via de brugdoorsteek t.p.v. de 1e verdieping;
- Begane grond: algemene ruimte/ opslag met tegelvloer en trapopgang naar 1e verdieping. Werkkamer aan de achterzijde met tegelvloer en tuindeur;
- Eerste verdieping: grote open ruimte met dakkapel aan de zijkant, vlizotrap naar bergzolder.
- Royale bergzolder t.b.v. opslagdoeleinden.

BUITENSHUIS
- Pandbrede voortuin: ca. 4.50 meter diep, gesitueerd op het westen en aangelegd met een grindborder en planten naar de waterkant;
- Oprit: ca. 19.00 meter diep, aangelegd met grind en betontegels;
- Achtertuin: totaal ca. 26.00 meter diep (ca. 14.00 meter diep achter het bijgebouw) en ca. 10.00 meter breed achter het bijgebouw. Omheind en met een achterom via de voorzijde (tussen de bijkeuken en het bijgebouw). Aangelegd met o.a. sierklinkers en diverse plantenborders;
- Betonnen grote tuinberging met betonpannen dak en een betonvloer.

KADASTER
- Gemeente Dubbeldam, sectie A, perceelnummer 3404, groot 404 m².
ALGEMEEN
- Woning is aangewezen als gemeentelijk monument;
- Woning is gefundeerd ‘op staal’;
- Gevels opgemetseld in spouwmuren;
- Samengestelde houten dakconstructie gedekt met keramische dakpannen;
- Plat dak voorzien van bitumineuze dakbedekking incl. isolatie (ca. 2019);
- Houten vloerconstructies. Betonnen/ steenachtige vloer linker gedeelte begane grond;
- Vloerisolatie t.p.v. rechter gedeelte begane grond;
- Grenenhouten kozijnen met overwegend houten ramen, deels stalen ramen (t.p.v. begane grond, voorzijde);
- Gedeeltelijk voorzien van isolerende beglazing en voorzetramen;
- Geïsoleerd bijgebouw uit 1999, houtskeletbouw i.c.m. stalen draagconstructie, v.v. betonnen begane grondvloer, hardhouten dakkapel zijkant 1e verdieping, grote bergzolder bereikbaar via een vlizotrap, verwarming, elektra en databekabeling. Geen water en riolering.

TECHNISCHE INSTALLATIES
- Verwarming en warmwater via een gasgestookte cv-combiketel (Nefit, ca. 2020);
- Verdeelinrichting elektra met 6 groepen, 2 aardlekschakelaars en een hoofdschakelaar;
- Glasvezelaansluiting.

WAND- EN VLOERAFWERKINGEN
- Begane grond: spachtelputz wandafwerking. Frans eiken vloerdelen (woonkamer), pvc laminaat (keuken) en plavuizen vloer (bijgebouw);
- Eerste verdieping: behang en structuurverf wandafwerking. Tapijt en laminaat vloerafwerking;
- Tweede verdieping: behang wandafwerking. Tapijttegels en vinylachtige vloerafwerking.

?
DISCLAIMER
Nadrukkelijk vermelden wij dat deze informatieverstrekking niet als een aanbieding of offerte mag worden beschouwd. Aan deze gegevens kunnen derhalve geen rechten worden ontleend en zijn wijzigingen voorbehouden.

De vermelde afmetingen/ oppervlakten in deze informatie zijn gemeten op basis van de BBMI (Branche Brede Meetinstructie). De meetinstructie is bedoeld om een meer eenduidige manier van meten toe te passen voor het geven van een indicatie van de gebruiksoppervlakte. De meetinstructie sluit verschillen in meetuitkomsten niet volledig uit, door bijvoorbeeld interpretatieverschillen, afrondingen of beperkingen bij het uitvoer en van de meting.

Let op! De foto’s in deze verkooppresentatie zijn genomen met een groothoeklens. Voor verkrijging van een reële indruk van de ruimten dient u de foto’s te spiegelen met de plattegronden!

Indien er plattegronden aan deze brochure zijn toegevoegd, houdt u er dan rekening mee dat deze plattegronden slechts een indicatie geven van de indeling.

Heeft u als geïnteresseerde deze woning bezichtigd met Zoomer Makelaardij, dan willen wij u graag verzoeken om ons binnen 5 werkdagen een reactie te geven.

Zoomer Makelaardij verlangt bij een verkooptransactie dat de kopende partij t.b.v. de verkopende partij een bankgarantie stelt c.q. waarborgsom stort ter grootte van 10% van de koopsom kosten koper. Dit ter meerdere zekerheid tot nakoming van de verplichtingen die voortvloeien uit de koopakte voor de kopende partij

Besluit u tot aankoop van een woning, denkt u dan aan een NVM aankoopmakelaar voor het behartigen van uw belangen.
Lees meer

Kenmerken

Condities

Status
verkocht
Aanvaarding
in overleg

Bouw

Soort woning
woonhuis
Soort woonhuis
eengezinswoning
Type woonhuis
twee onder een kapwoning
Aantal woonlagen
4
Bouwjaar
1925
Onderhoud binnen
redelijk_tot_goed
Onderhoud buiten
redelijk_tot_goed
Voorzieningen
airconditioning, schuifpui, glasvezel kabel, natuurlijke ventilatie
Isolatie
dakisolatie, vloerisolatie, gedeeltelijk dubbel glas, voorzetramen

Oppervlakten en inhoud

Woonoppervlakte
155 m²
Perceeloppervlakte
404 m²
Inhoud
675 m³
Inpandige ruimte oppervlakte
72 m²
Bergruimte oppervlakte
14 m²

Indeling

Aantal kamers
7

Buitenruimte

Ligging
vrij uitzicht, landelijk gelegen
Tuin
achtertuin met een oppervlakte van 175 m² en is gelegen op het zuidoosten

Garage / Schuur / Berging

Garage
geen garage
Parkeergelegenheid
op eigen terrein
Schuur/berging
vrijstaand steen

Foto's

Plattegronden

Locatie

Download de brochure

Neem contact op met Zoomer Makelaardij

Altijd vrijblijvend!
Naam *
Telefoonnummer *
E-mailadres *
Optioneel
Stel je vraag - optioneel

Liever direct contact?

Edwin helpt je graag verder!
Ik wil een afspraak
Edwin